NEW INFORMATION: worker killed in Lake Hallie industrial accident
By Keith Edwards Posted: Aug 31, 2016 5:43 PM EST
Chippewa Falls, WI
Lake Hallie (WQOW) - We have new information surrounding a death in the Village of Lake Hallie.
Otto Kolpien, from Chippewa Falls, died last week while working at Huffcutt Concrete. According to an investigation by the Chippewa County Sheriff's Office, a large steel form used to make concrete septic tanks fell on him.
Investigators believe a secondary hook on the hoist was not fully hooked, and did not have a safety latch. A co-worker said Kolpien had worked there for about 18 years. Another co-worker told investigators that according to procedure, Kolpien should have had something underneath the form to catch it in case it fell.
The coroner's office has ruled it an accidental death. The sheriff's department has closed its investigation, but an OSHA investigation is still underway.
==========
Report: Hoist hook missing safety latch in Huffcutt Concrete death
posted Aug. 31, 2016 11:47 a.m. | updated Aug. 31, 2016 11:57 a.m. (CDT)
by / Chris Vetter.
Otto Kolpien CHIPPEWA FALLS – One of the two hooks on a hoist at Huffcutt Concrete in Lake Hallie was not fully hooked in place and was missing a safety latch, causing a large concrete form to fall on worker Otto Kolpien on Aug. 22, crushing him and killing him instantly, the Chippewa County Sheriff’s Department reports.
The accident occurred at Huffcutt Concrete INC, 4154 123rd St., Lake Hallie, at 3:57 p.m. The sheriff’s department released the report Wednesday, which states Kolpien’s death was ruled as accidental. However, it notes that some safety measures were not followed.
Kolpien, who had worked on the equipment for 18 years, was the main person who used this particular hoist. He had gone under the heavy concrete form – it’s used to make 3,000 gallon septic tanks – to spray it with an agent, or perhaps tape and oil the form.
The concrete form was perhaps four to six feet in the air, held up by a hoist, when it came loose and fell on Kolpien.
The hoist had two hooks -- the main one, plus a secondary piece. It is unclear if the form was being held by both hooks or just one.
“It is believed that a secondary hook was not fully hooked,” the report states. “This hook also did not have a safety latch, which may have been a contributing factor.”
Chippewa County investigator Brad Lau interviewed several Huffcutt Concrete workers who heard the heavy concrete form fall. The workers re-hooked the form to the hoist and lifted it off of Kolpien, who was pinned underneath. However, it was obvious that Kolpien had died instantly, as he suffered massive trauma to his head, chest and abdomen, the coroner’s office wrote.
One of the workers, Michael Liddell, said the secondary hook didn’t have a working safety latch for the past 1 ½ years.
“Michael told us that the secondary hook is required to have a safety latch on it,” Lau wrote in his report. “Michael said that when the hooks were sent out to be certified, this particular hook came back without the safety latch.”
Liddell said the secondary hook is smaller, and fits better than the main hoist hook.
Employee Kevin Kressin said that Kolpien had always been conscientious when using the equipment, and that Huffcutt Concrete owners did not want anyone walking underneath the forms. Kressin did not know why the secondary hook “was still in use.”
However, another employee, Matthew McVinnie, told Lau that the hoists are checked daily, and the chains and hooks were recertified approximately one month ago.
OSHA officials sat in on all of Lau’s interviews with the workers. That agency is conducting its own investigation.
The report doesn’t say the weight of the concrete form, but notes it is 12’8” in length, 6’7” in width and 5’4” in height. Lau checked the hoist, which appeared to be working properly.
Kolpien, 47, lived at 647 W. Canal St., Chippewa Falls, although his family lived in Barron County. Lau had the Barron County Sheriff’s Department inform them of Kolpien’s death.
History of Huffcutt Concrete
Huffcutt Concrete was founded in 1945, in Chippewa Falls, WI. What was once a small plant, primarily providing septic tanks to nearby communities, Huffcutt Concrete has grown to serve several major product areas, focusing on modular buildings, vault toilets, restrooms, utility buildings and other parks and recreation products, available across the country while still maintaining strong farm and septic product lines.Huffcutt Concrete, Inc. has been focused on quality, service and innovation in our field since 1956. Huffcutt Concrete is a member of the Wisconsin Precast Concrete Association (WPCA), the National Precast Concrete Association (NPCA) and is a NPCA certified plant.
Product Line
Huffcutt Concrete offers a diverse product line including standard and customized modular buildings, restrooms, vault toilets, utility buildings, and recreational products as well as secure storage, agricultural products, septic tanks, and more. Custom products are also available. Call or email us today for more information.TANK WEIGHTS
We offer a wide range of Septic Tanks available from 280 gallons to 5,000 gallons. Larger sizes available upon request. All tanks are approved for up to an 8' depth of bury.
| Septic Tank Size | Dimensions | Weight (lbs) | Anchor Weight (lbs) | Soil Cover (in) |
|---|---|---|---|---|
| 5000 gal | 204"L x 96"W x 93"H | 41,400 | 30,850 | 24 |
| 3000 gal | 165"L x 92"W x 76"H | 20,300 | 23,320 | 23 |
| 2600 gal | 147"L x 90"W x 73"H | 18,100 | 20,625 | 24 |
| 2000 gal | 162"L x 78"W x 64"H | 16,100 | 15,675 | 19 |
| 1600 gal | 145"L x 78"W x 61"H | 14,000 | 11,270 | 16 |
| 1200 gal | 111"L x 78"W x 61"H | 11,400 | 9,532 | 17 |
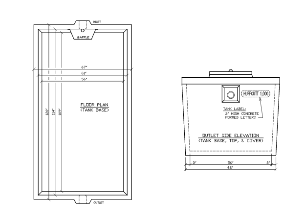
| 1000 gal Low Profile | 120"L x 67"W x 57"H | 9,500 | 8,705 | 17 |
| 1000 gal Heavy Duty | 96"L x 78"W x 61"H | 9,200 | 8,945 | 18 |
| 800 gal | 96"L x 67"W x 57"H | 8,000 | 6,560 | 16 |
| 600 gal | 78"L x 56"W x 60"H | 6,600 | 3,810 | 14 |
| 1600/1400 gal | 174"L x 90"W x 73"H | 23,000 | 22,410 | 22 |
| 1250/750 gal | 162"L x 78"W x 64"H | 16,400 | 15,725 | 19 |
| 1000/600 gal | 145"L x 78"W x 61"H | 14,700 | 12,705 | 17 |
